Photo by Nachelle Nocom on Unsplash
No matter where in Northumberland you intend to build a tiny home, the following principles apply:
- “Tiny” terminology: while “Tiny Homes” is an important concept that connotes simpler living, attention to design and functionality, and many other things, it isn’t a useful term when it comes to planning and building. We’ve found that using that terminology with planners (or banks) isn’t particularly helpful, and can cause some extra hurdles as they want to ensure that your tiny home isn’t a mobile home or “trailer,” which can’t usually get financing and is often restricted by zoning. The best definition of a tiny home is the same as any other home: let it be defined by the Building Code.
- The Ontario Building Code regulates the design and basic features of all homes and sets a minimum size for a dwelling. So long as it meets code, it’s a house – no “tiny” qualifier needed. Your builder must be building to code, but it can’t hurt to ask!
- Tiny homes aren’t restricted to ADUs! Your primary dwelling can be small, so long as it meets the standards of the Ontario Building Code. Some municipalities still have a minimum size of dwelling written into their zoning by-laws, as you’ll see on the page for your municipality.
A key point to consider is that a home, large or tiny, is a permanent structure with adequate living amenities like plumbing and heating, and sleeping, laundry, and kitchen areas. Being a “permanent” structure means being on a foundation, rather than on wheels or a chassis. It’s common for permanent tiny homes to be built offsite and set onto a concrete slab or helical piers (not all municipalities allow for helical piers, be sure to ask!). While it’s common to see tiny homes on the internet being mobile, you’re unlikely to get a permit in Ontario unless your home is on a foundation. That said, some municipalities do allow for a tiny home on wheels, but it comes with extra conditions. Click the link for your municipality below for more info.

And while sustainability-minded tiny home fans might be just fine with collecting rainwater and using composting toilets, municipal planners are almost always going to require water and sanitary hookups. In an urban setting that means being connected to municipal water and sewer services; in a rural setting it will mean a well and septic system. You can always ask for an exemption – don’t be afraid to advocate for yourself!
And finally, remember that provincial and municipal regulations will change over time. We’ll do our best to keep this updated, but this page is no substitute for a good conversation with your local planner.
With all of that in mind, start your journey toward tiny home ownership in your respective Northumberland municipality. From west to east:
Tiny Home Design
The thing that conceptually distinguishes a “tiny home” from a home that is simply small is the design: a tiny home is typically designed with a careful eye for efficient use of space and multi-functional features, in order to get all or most of the benefits of a larger home in a smaller footprint.

It isn’t uncommon in tiny homes to see a bachelor style, with a living/dining space that converts to a bedroom. Tiny homes often also feature a loft bedroom, using vertical space to maximize available floor space. But tiny homes can also be larger, adding capacity for more people while still maintaining the design principles of efficiency and functionality.

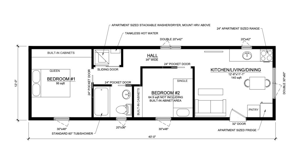
One of the greatest challenges of tiny homes is also a challenge for large homes: storage. For many of us, there can never be enough storage! But people who embrace tiny home living can often stumble on this point. While tiny homes often have built-in storage under almost every horizontal surface, if you’re considering tiny home living or a tiny ADU we recommend having some form of additional storage space nearby, whether that’s dedicating some shelves in the garage for your ADU tenant or having a storage shed in the yard.

This tiny home has storage under the stairs and bench in addition to the kitchen cabinets, and puts the bedroom in a loft above the bathroom/laundry room.
Note that heating and cooling tiny homes can be quite cheap with a high-efficiency ductless heat pump, as pictured in the kitchen above.
Leave a comment